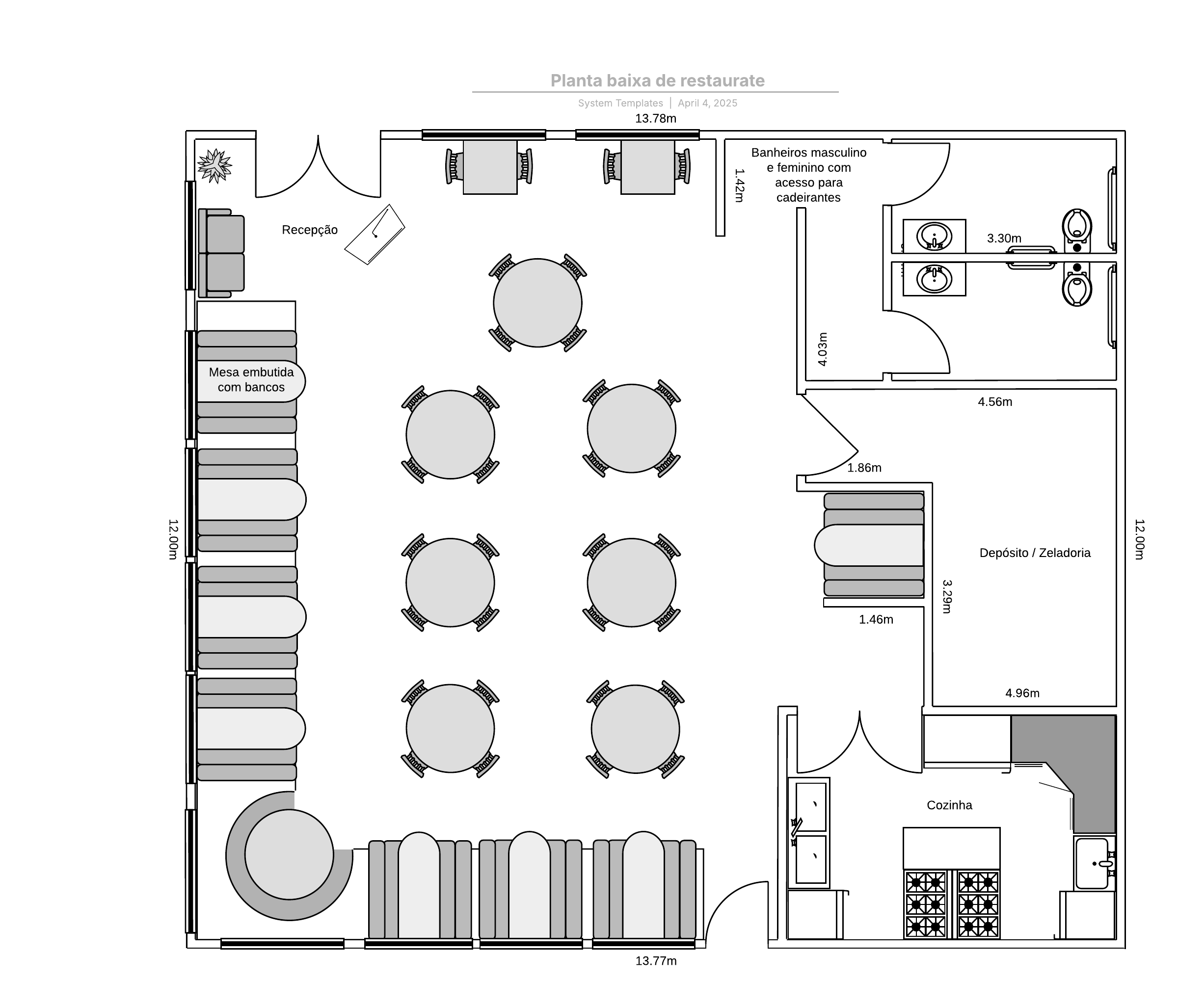
Planta baixa de restaurante
Este modelo funciona nos seguintes produtos:
*Para os planos Equipe e Corporativo
Plantas baixas são desenhos em escala que representam um espaço, visto de cima.
Use esta planta baixa de restaurante para planejar seu negócio. Assim você poderá ver se o espaço será adequado para o que será usado e poderá antecipar qualquer mudança necessária ao projeto.
